



PL型單機袋式除塵器是一種體積小,除塵效率高的就地除塵機組.此單機除塵器風機部件采用仿國外離心通風機,風量大,風壓高,風機特性曲線硬,并采用消聲措施,使用時噪音小;過濾器部件采用208工業滌綸斜紋絨布為濾料的扁布袋過濾器,每個布袋內均裝有彈簧鋼絲網,過濾
服務電話:13091153069(同微信)


天津化工廠PL布袋除塵器調試完工,PL系列布袋除塵器是一種小型單機除塵器,其適用于實驗室、藥廠、面粉廠、食品廠等,其搬運靈活,儲灰抽屜式,適合室內布置,設備外殼可以做噴塑處理,也可以做304不銹鋼材質。常用PL除塵器有2.2KW,3KW,4KW,5.5KW等機型,常用機型常年備用現貨,隨時可以發貨。支持異型PL除塵器定制,可定做灰斗型,防爆型,移動型。
一、產 品 簡 介:
PL型系列單機袋式除塵器,是根據國外引進的除塵器設備進行改進研制成功的新穎產品,是一種體積小,除塵效率高的就地除塵器機組。該產品從七九年開始研制,年底出樣機八〇年小批量生產。八一年批量生產,并作了改進,八二年大批量生產,并又進一步改進提高。目前該產品主要技術指標均達到O先進水平,銷售遍及全國,并遠銷國外深受用戶歡迎。
二、結 構 概 述:
該系列機組基本結構由風機、過濾器和集塵器三個部件組成,各部件都安裝在一個立式框架內、鋼板殼體、烘漆防銹,外型美觀、結構科學、運行可靠、使用方便。
各部件結構特點如下:
1.風機部件采用仿國外離心通風機,風量大,風壓高,風機特性曲線硬,并采用消聲措施,使用時噪音小。
2.過濾器部件采用208工業滌綸斜紋絨布為濾料的扁布袋過濾器,每個布袋內均裝有彈簧鋼絲網,過濾效果好,更換濾袋方便,使用壽命長。
3.過濾器部件的清灰機構,是采用電動機帶動偏心輪,連桿使布袋抖動而清除沾在濾袋外表面的粉塵。其控制裝置分自控和手控兩種。自控即在風機連續工作時,清灰機構定時自動振打清灰,手控即風機停止后清灰機構自動工作,數十秒鐘后自動停止,也可根據需要隨時啟動清灰電機振打清灰,清灰時間長短由用戶自行調節時間繼電器。
4.過濾器部件裝有即寬暢又密封的快速折卸檢修門②,以便需要時進行檢修和移出過濾器。
5.集塵器部件采用抽斗式結構,清除灰塵十分方便。
6.集塵器上方一側的進風接口③在需要時可折下,以便于加大進風口面積的使用。
7.該機組現有十六種規格,分A、B兩型。A型設灰斗抽屜、B型不設灰斗抽屜。下部加法蘭;由用戶直接配接在折包口料倉倒料口,混料庫、噴砂箱、皮帶運輸調頭處等揚塵設備上就地除塵,粉塵直接回收。
8.本機組可根據設計單位或用戶實際需要,特定制造。
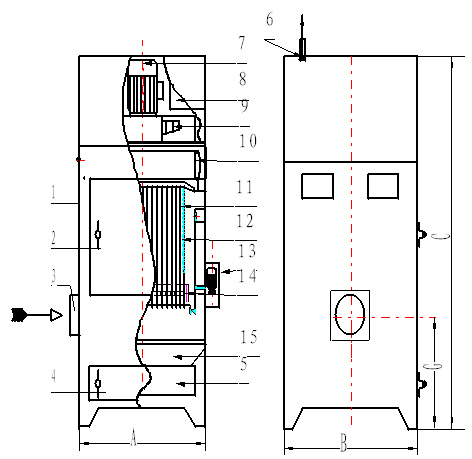
三、 機組結構簡圖:

|
序號 |
名稱 |
序號 |
名稱 |
|
1 |
殼體 |
9 |
風機 |
|
2 |
檢修門 |
10 |
過濾器緊定螺絲 |
|
3 |
進風口 |
11 |
扁布袋 |
|
4 |
出灰門 |
12 |
鋼絲網 |
|
5 |
抽屜 |
13 |
振打清灰電機 |
|
6 |
潔凈空氣出口 |
14 |
隔袋件 |
|
7 |
電機 |
15 |
灰斗 |
|
8 |
電器控制裝置 |
|
|
四、工 作 原 理:
含塵氣體進入箱體,由扁布袋過濾器進行過濾,粉塵被阻留在除塵布袋外表面,已凈化的氣體通過濾袋進入風機,由風機吸入直接排入室內(也可接管排至室外)。
隨著過濾時間的增加、濾袋外表面沾附的粉塵也不斷增加、濾袋阻力也相應增加,從而影響除塵效果,采用自控清灰機構進行定時振打清灰或手控清灰機構停機后自動振打數十秒鐘,使沾在濾袋外表面的粉塵抖落下來,落到集塵容器(抽屜)中的粉塵由人工拉出清除。
五、用 途 范 圍:
本系列產品廣泛用于鑄造工業、陶瓷工業、玻璃工業以及耐火材料、水泥建材、砂輪制造、化工制品、機械加工等等行業的除塵,該產品對比重較大的金屬切屑,鑄造用砂,如車床、磨床、銑床、砂輪機、拋光機等等,和中等比重的粉塵,如水泥、陶瓷粉、石膏粉、石棉粉、炭粉、顏料、膠木粉、塑料粉等等。以及比重較輕的非纖維性粉塵均有良好的除塵效果,該機組除塵效率大于百分之九十九點五。
六、PL—A型系列單機除塵設備技術性:
|
型號規格 項 目 |
PL—800/A |
PL—1100/A |
PL—1600/A |
PL—2200/A |
|
風量M3/H |
800 |
1100 |
1600 |
2200 |
|
資用壓力MMH2O |
80 |
85 |
85 |
100 |
|
過濾面積M2 |
4 |
7 |
10 |
12 |
|
進氣口尺寸mm |
Φ120 |
Φ140 |
Φ150 |
Φ200 |
|
進氣口中心離底距H |
318 |
345 |
418 |
433 |
|
風機電機功率KW |
1.1 |
1.5 |
2.2 |
3 |
|
清灰電機功率KW |
0.18 |
0.18 |
0.18 |
0.18 |
|
過濾風速M/MiN |
3.33 |
2.62 |
2.66 |
3.05 |
|
凈化效率% |
>99 |
>99 |
>99 |
>99 |
|
灰箱容積(1) |
20 |
30 |
40 |
40 |
|
噪 聲d B(A) |
75 |
75 |
75 |
75 |
|
外形尺寸 A×B×Cmm |
530×520×1300 |
700×580×1400 |
740×580×1913 |
720×630×1696 |
|
重 量Kg |
400 |
550 |
600 |
730 |
|
價 格 元 |
6226 |
7677 |
8184 |
9332 |
七、PL—A型系列單機除塵設備技術性能:
|
型號規格 項 目 |
PL—2700/A |
PL—3200/A |
PL—4500/A |
PL—6000/A |
|
風量M3/H |
2700 |
3200 |
4500 |
6000-8000 |
|
資用壓力MMH2O |
120 |
100 |
100 |
150-120 |
|
過濾面積M2 |
13.6 |
15.3 |
21.5 |
30 |
|
進氣口尺寸mm |
200×250 |
200×300 |
200×350 |
220×450 |
|
進氣口中心離底距H |
458 |
478 |
478 |
1295 |
|
風機電機功率KW |
4 |
4 |
5.5 |
7.5 |
|
清灰電機功率KW |
0.18 |
同左 |
同左 |
0.55 |
|
過濾風速M/MiN |
3.30 |
3.48 |
3.49 |
3.33×4.5 |
|
凈化效率% |
>99 |
同左 |
同左 |
99.5 |
|
灰箱容積(1) |
55 |
55 |
70 |
105 |
|
噪 聲d B(A) |
<75 |
同左 |
同左 |
<80 |
|
外形尺寸 A×B×Cmm |
760×680×1798 |
790×700×1888 |
900×800×2028 |
120×900 |
|
重 量Kg |
850 |
980 |
1040 |
1200 |
|
價 格 元 |
10819 |
12018 |
14168 |
15858 |
八、PL-B型系列單機除塵設備技術性能:
|
型號規格 項 目 |
PL—800/B |
PL—1100/B |
PL—1600/B |
PL—2200/B |
|
風量M3/H |
800 |
1100 |
1600 |
2200 |
|
資用壓力MMH2O |
>80 |
>85 |
>85 |
>100 |
|
過濾面積M2 |
4 |
7 |
10 |
12 |
|
風機電機功率KW |
1.1 |
1.5 |
2.2 |
3 |
|
清灰電機功率KW |
0.18 |
同左 |
同左 |
0.18 |
|
過濾風速M/MiN |
3.33 |
2.62 |
2.66 |
3.05 |
|
凈化效率% |
>99.5 |
同左 |
同左 |
99.5 |
|
噪 聲d B(A) |
<75 |
同左 |
同左 |
<75 |
|
外形尺寸 A×B×Cmm |
530×520×1040 |
700×580×1100 |
740×580×1240 |
720×660×1330 |
|
底法蘭尺寸E×FMM |
598×588 |
768×648 |
826×666 |
806×746 |
|
重 量Kg |
280 |
330 |
470 |
600 |
|
價 格 元 |
6435 |
7245 |
7758 |
9276 |
九、PL-B型系列單機除塵設備技術性能:
|
型號規格 項 目 |
PL—2700/B |
PL—3200/B |
PL—4500/B |
PL—6000/B |
|
風量M3/H |
2700 |
3200 |
4500 |
6000 |
|
資用壓力MMH2O |
>120 |
>100 |
>100 |
>150-120 |
|
過濾面積M2 |
13.6 |
15.3 |
21.5 |
25 |
|
風機電機功率KW |
4 |
4 |
5.5 |
7.5 |
|
清灰電機功率KW |
0.18 |
同左 |
0.37 |
0.55 |
|
過濾風速M/MiN |
3.30 |
3.48 |
3.40 |
3.33-4.5 |
|
凈化效率% |
>99.5 |
同左 |
同左 |
99.5 |
|
噪 聲d B(A) |
<75 |
同左 |
同左 |
<80 |
|
外形尺寸 A×B×Cmm |
760×680×1380 |
790×700×1420 |
900×800×1550 |
1200×900×1720 |
|
底法蘭尺寸E×FMM |
864×784 |
894×804 |
1004×905 |
1102×1002 |
|
重 量Kg |
520 |
615 |
815 |
1190 |
|
價 格 元 |
10680 |
11393 |
12938 |
15901 |
注:
1.貨用壓力即機真空度,系指機器可供使用的壓力,是機器進氣口實測靜壓的絕對值.
2.凈化效率大于99.5%是用于中位徑的100的滑石粉測定數值,測定值O低為99.62%,平均為99.6.
3.機器風量是在資用壓力時的吸風量.
十二、使 用 說 明:
1.PL型系列單機除塵機組,安裝在產生粉塵的機械設備鄰近處,并由用戶按照除塵組上的進氣口尺寸可自行配制金屬或塑料吸塵管道和吸塵罩(也可在訂貨時與生產廠聯系可代為配制)。
2.機組工作前應檢查檢修門②,出灰門④及風管連接系統是否密封,以免泄漏,降低吸塵效果。
3.該機組電壓為三相交流電三百八十伏,從機組上的外部電線接上電源后即可開始使用初運轉時,應注意風機是否正轉(如反轉,風量很小,需調換電源接線)。
4.機組電控箱蓋,在工作時不得隨意打開,如需調節清灰時間或需檢查電路時,應停機或切斷電源后再進行工作。
5.根據粉塵的性質和容塵量的大小,應定時振打清灰,一般情況每班振打三到四次,每次30—45秒為宜以確保機組正常工作。
6.根據實際需要,定期進行清除灰塵,集塵器內集塵清除時,只須在風機和清灰機構工作停止時,打開密封的出灰門,抽出抽屜即可。
7.為了保證設備處于O佳工作狀態,應盡量靠近粉塵發源地,一般以一米半到二米為宜連接管道,可能短,并盡量減少彎頭,以免增加阻力損失。
8.吸塵罩是保證機組處于O佳狀態的關鍵配件,使用單位應根據加工件的外型尺寸及粉塵的性質,按照通、近、順、封、便設計吸塵罩的原則,制作理想的吸塵罩。
十三、維 護 保 養:
1.扁布袋過濾器應定期檢查磨損情況,如發現有損壞需及時修補或更換過濾器,同時應根據實際情況定期清洗布袋,一般連續使用四個月需清洗一次.清洗或更換時,只須將過濾器部件的四個緊定螺絲10放松即可抽出。重新安裝時要注意過濾器部件與風機部件之間的密封(兩部件之間有密封填料粘合)同時注意過濾器部件下面的隔袋件是否與扁布袋“對號入座”裝畢后,應開機振打數次,使過濾器恢復原來過濾效率。
2.一般隔6個月,將振打清灰電機罩殼折下“對偏心套軸承加注黃油,并檢查橡膠密封膜是否損壞,若已磨損壞應更換。
3.對機組應勤擦、勤清理、勤檢查、保持機組清潔美觀,確保機組正常運行。
4.易損件可電告、信函或面購,本廠即付。